Log Home Designs - Log Home Floor Plans - Log Homes - Log Home Plans - Log home Cabins - Blueprints - Photos
Custom Log Home Designs - Ron Dirkson Design Services, Nanaimo, BC
Log Home Design Home Log Home Design About Us Log Home Plans, Log Home Design Log Home Plans , Log Home Design Catalog Log Home Design Photos Log Home Design Order Online Log Home Design Contact Us Log Home Design Questions Log Home Design Accessories Log Home Plans, Log Home Designs, Newsletter Log Home Plans 3D Log Home Plans Gallery

Plans / Chalets 1 / DDS1552W

Main: 1246 Sq. ft.
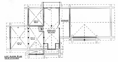
Loft: 306 Sq. ft.
Total: 1552 Sq ft.
Garage: 759 Sq. ft.

Click on the images for full size view Click here for a printable file

 

Back to Top - Log Home Design
Back to Home - Log Home Designs - Log Home Plans
For additional log home design information please contact:
Ron Dirkson Design Services

PO BOX 874 STN A, Nanaimo, BC, Canada, V9R 5N2
Tel: (250) 390-4714

Home :: About Us :: Log Home Plans :: Catalog :: Log Home Photos :: Order :: Contact Us :: Questions Accessories :: Dealer Ops :: 3D Log Home Plans :: 3D Gallery :: Newsletter :: Newsletter Archive :: Areas Served :: Log Home Links :: Site Map

Website Design
Webacom Media Corp

Log Home Designs - Log Home Floor Plans - Log Home Plans - Log Cabins - Blueprints - Photos